
Nichée sur les hauteurs recherchées d’Ougrée, cette spacieuse maison bel-étage trois façades séduira les amateurs de calme, d’authenticité et de nature. Entourée de bois tout en restant à proximité directe des axes principaux, commerces, écoles et transports en commun, elle offre une qualité de vie particulièrement agréable.
Développant une surface de plancher chauffé de 277 m² (selon PEB), l’habitation se compose actuellement de 3 chambres lumineuses et d’un vaste grenier offrant la possibilité d’aménager deux chambres supplémentaires, idéal pour une grande famille ou un projet évolutif.
Le séjour convivial s’accompagne d’une pièce attenante pouvant servir de bureau, salle de jeux, espace hobby ou coin détente, selon vos besoins.
La cuisine équipée s’ouvre sur une terrasse et un jardin verdoyant, parfaits pour profiter du plein air en toute tranquillité.
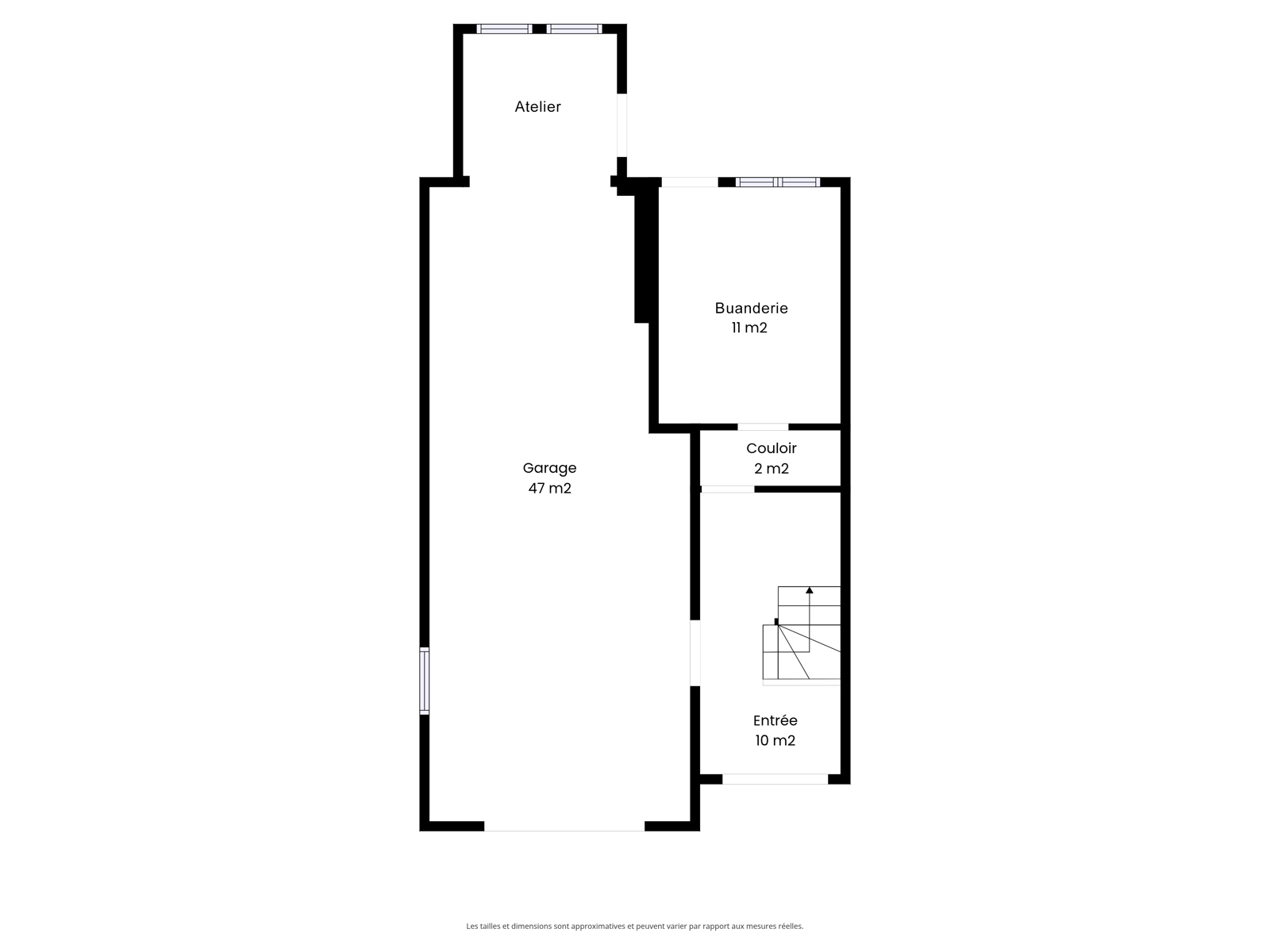
La salle de bain comprend une baignoire confortable, et la maison dispose également d’un vaste hall d’entrée, d’une buanderie avec chaudière au gaz, d’un garage avec porte électrique et fosse d’entretien, ainsi que de toilettes indépendantes.
Côté confort, vous apprécierez les châssis PVC double vitrage et les volets manuels sur l’ensemble des ouvertures.
Côté charme, la maison affiche un style liégeois traditionnel, avec poutres apparentes et un foyé à bois créant une ambiance chaleureuse et conviviale.
PEB : D – n°20250819013113
Envie de visiter ce bien ?
Contactez-nous au 04 234 24 25 pour organiser votre visite ou obtenir plus d’informations.
Adresse :
Rue Jouhaux 1 - 4102 Seraing
Référence | 7205782 |
---|---|
Catégorie | Maison |
Meublé | Non |
Nombre de chambres | 3 |
Nombre de salles de bain | 1 |
Jardin | Oui |
Surface du jardin | 250 m² |
Garage | Oui |
Terrasse | Oui |
Surface habitable | 277 m² |
Surface du terrain | 368 m² |
Disponibilité | 15/10/2025 |
Année de construction | 1975 |
---|---|
Nombre de garage | 1 |
Parking intérieur | Non |
Parking extérieur | Oui |
Parking(s) intérieur (nombre) | 2 |
Parking(s) extérieur (nombre) | 1 |
Type de toit | en pente |
Nombre d'étages | 2 |
---|
Accès handicapés | Non |
---|---|
Cuisine | Oui |
Chauffage (ind/coll) (type (ind/coll)) | individuel |
Ascenseur | Non |
Double vitrage | Oui |
Chauffage (type) | gaz (chau. centr.) |
Type de cuisine | équipée |
Sdb (type) | bain |
Double vitrage (type) | isol. thermique |
Parlophone | Oui |
Buanderie | Oui |
---|---|
Véranda | Oui |
Bureau | Oui |
Grenier | Oui |
Nbre de toilette(s) (nombre) | 2 |
---|---|
Nombre de sdd | 1 |
Chambre 1 (surface) | 17 m² |
Chambre 2 (surface) | 17 m² |
Chambre 3 (surface) | 11 m² |
Nbre de terrasse(s) (nombre) | 1 |
Salle de séjour (surface) | 35 m² |
Cuisine (surface) | 11 m² |
Bureau (surface) | 5 m² |
Profession libérale poss. | Oui |
---|---|
Jugement en cours | Non |
Permis de bâtir | Oui |
Destination bâtiment (type) | privé - habitation |
Droit de préemption | Non |
Affectation urbanistique | zone d'habitat |
Intimation en justice | Non |
Volets | Oui |
---|---|
Volets (type) | manuel |
Piscine | Non |
---|
Égouts | Oui |
---|---|
Électricité | Oui |
Gaz | Oui |
Câbles téléphoniques | Oui |
Eau | Oui |
Châssis (type) | pvc |
---|
Type d'environnement | calme |
---|---|
Type d'environnement 2 | boisé |
Risque d'inondation (type innondation) | pas situé en zone inondable |
Loué | Non |
---|---|
Habité (détails) | non |
Surface de terrasse 1 | 7 m² |
---|
Type de revêtement de sol | carrelages |
---|
Magasins | Oui |
---|---|
Ecoles | Oui |
Transports en commun | Oui |
Certificat d'électricité (oui/non) | oui, non conforme |
---|
Label PEB (classe) | D |
---|---|
PEB E-SPEC (kwh/m²/an) | 300 |
Emission CO2 (émission CO2) | 55 |
E total (Kwh/an) | 83045 |
PEB code unique | 20250819013113 |
PEB valide jusqu'au (datetime) | 19/08/2035 |
Date du PEB (datetime) | 19/08/2025 |